Trilocale in vendita

Santo Stefano Ticino, Via novella
€ 229.000
3 locali 3 locali
87 Mq 87 Mq
2 bagni 2 bagni

Trilocale in vendita

Santo Stefano Ticino, Via novella

Descrizione annuncio

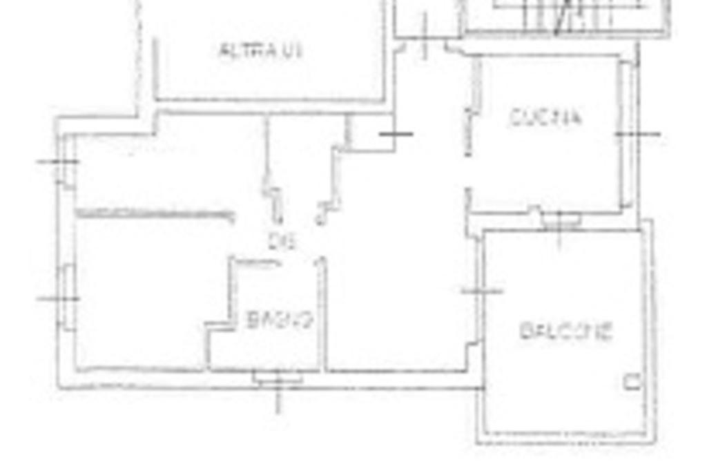
Santo Stefano Ticino: a ridosso del Parco dei Ciliegi, facilmente raggiungibile a piedi. L’immobile è inserito in un contesto di recente costruzione, situato in una via a fondo chiuso con passaggio consentito esclusivamente ai residenti.
Palazzina di soli 9 appartamenti, dotata di ascensore e totalmente priva di barriere architettoniche.

L’appartamento si presenta davvero ben curato, con un’eccellente sfruttabilità degli spazi. Il portoncino blindato conduce all’ingresso, dove troviamo un pratico ripostiglio, ideale come guardaroba, scarpiera e per svariati altri utilizzi.

Il soggiorno è accogliente ed estremamente luminoso grazie alla presenza di un’ampia porta-finestra, dalla quale si accede a un terrazzo coperto, regolare e di generose dimensioni, sfruttabile anche in presenza di numerosi ospiti e caratterizzato da una soleggiata esposizione sud-est.

La cucina è estremamente abitabile e anch’essa, tramite porta-finestra, gode dell’accesso al medesimo terrazzo della zona living, offrendo una notevole comodità per pranzare e cenare all’aperto.

Il disimpegno notte conduce alle due camere: una con la possibilità di invertire la disposizione degli arredi grazie alla presenza di punti luce su entrambe le pareti; l’altra è sfruttabile anche come comodo studio.

Il bagno principale, pratico e spazioso, è dotato di doccia con relativo box; nel secondo bagno è invece possibile collocare comodamente lavatrice e asciugatrice in colonna.

L’abitazione beneficia di finiture e accessori di qualità, estremamente funzionali. Gli infissi sono in PVC bianco effetto legno, con apertura a vasistas, doppi vetri e zanzariere, completi di tapparelle in alluminio predisposte per l’automatismo.

L’appartamento è inoltre dotato di impianto di aria condizionata con tre split interni e un’unità esterna, nonché di impianto antifurto con sensori perimetrali, volumetrici ed esterni.

La pavimentazione è in ceramica in tutta la casa, ad eccezione delle camere e del disimpegno, dove è presente parquet in rovere. Sul terrazzo è inoltre installata una tenda da sole.

Completano la soluzione una cantina e un box autorimessa, entrambi dotati di punti luce collegati al contatore dell’abitazione e pertanto utilizzabili per molteplici scopi.
Mostra tutto

Nelle vicinanze

Trasporto pubblico Trasporto pubblico
Vittuone-Arluno
Vittuone-Arluno
2,8 Km
Corbetta Santo Stefano (FNM) (Santo Stefano Ticino)
Corbetta Santo Stefano (FNM) (Santo Stefano Ticino)
270 m
Viale Borletti - Stabilimento Magneti Marelli (Corbetta)
Viale Borletti - Stabilimento Magneti Marelli (Corbetta)
340 m
stazione di Corbetta-Santo Stefano Ticino
stazione di Corbetta-Santo Stefano Ticino
360 m
Ricariche auto elettriche Ricariche auto elettriche
U2 Supermercato Magenta | EnelX
3,0 Km
Scuole Scuole
Scuola Secondaria di Primo Grado di Santo Stefano Ticino
940 m
Scuola Primaria di Santo Stefano Ticino
1,0 Km
Scuola Secondaria di Primo Grado Simone da Corbetta
1,6 Km
Istituto Professionale Vasco Mainardi
1,6 Km
Scuola Primaria Aldo Moro
1,9 Km
Farmacia Farmacia
Farmacia
620 m
Farmacia Comunale 2
1,1 Km
Farmacia Perre Rosario
1,6 Km
Farmacia Chimica del dottor Berti Carlo & C. Sas
1,6 Km
Farmacia Comunale 1
1,6 Km
Ospedali Ospedali
Ospedale Giuseppe Fornaroli
2,1 Km
Supermercati Supermercati
Lidl
1,3 Km
Penny
1,3 Km
Esselunga
1,4 Km
Aldi
1,6 Km
U2
1,6 Km
Negozi Negozi
OVS
1,2 Km
Negozi
1,4 Km
CVG Gold
1,5 Km
Angolo del Pane
1,7 Km
Bellamoda
2,3 Km
Bar Bar
Arcadia
790 m
Bar Isola
980 m
Angolo Cafè
1,4 Km
Bar dello Sport
1,4 Km
Bar
1,5 Km
Ristoranti Ristoranti
Ristoranti
990 m
La Nuvoletta
1,0 Km
Pizzeria Il Cacciatore
1,0 Km
Roadhouse Grill
1,1 Km
Il Mare 2
1,1 Km
Mostra tutto

Caratteristiche

Rif.:
61155508
Piano:
1 di 3 con ascensore (Piano basso)
Box:
1
Terrazzi:
1
Camere da letto:
2
Arredamento:
Assente
Mostra tutto
Prezzo Prezzo
€ 229.000
Rata mutuo Rata mutuo
€ 1.081 / mese
Spese annue Spese annue
€ 1.500
Proponi il tuo prezzoProponi il tuo prezzo

Classe Energetica

C
C
C
C
C
C
C
C
C
EP globale non rinnovabile:
113.30 kW h/m² anno
EP globale rinnovabile:
11.31 kW h/m² anno
EP invernale del fabbricato:
EP estiva del fabbricato:
Anno di costruzione:
2010
Riscaldamento:
Centralizzato
Tipo impianto:
A radiatori
Tipo alimentazione:
Metano

Ti interessa visionare l'immobile?

Fissa un appuntamento  Fissa un appuntamento

Richiedi informazioni

Clicca su Leggi per aprire l'informativa
* Questi campi sono obbligatori

Calcola il tuo mutuo

Semplice e senza impegno
Anticipo

( % )
Mutuo

( % )

pochi semplici passi

inserisci i tuoi dati
Questionario completato
Grazie per aver richiesto un appuntamento senza impegno con un nostro Consulente del Credito e Assicurativo.

Hai inserito correttamente tutti i dati necessari e a breve riceverai una e-mail con un link da convalidare per inviare i tuoi dati.
Affiliato
Studio Santo Stefano Ticino D.I.
P.zza Sandro Pertini, 17 20010 Santo Stefano Ticino (MI)

Il nostro staff


  • Lorenzo Gatti
    Affiliato

  • Simona Oberto
    Coordinatrice

  • Sonia Oberto
    Responsabile

  • Veronica Cerri
    Coordinatrice
P.zza Sandro Pertini, 17 20010 Santo Stefano Ticino (MI)
Zona: Santo Stefano Ticino - Corbetta
Mostra su mappa
Orari: Lunedì-Venerdì: 9.00/12.30 - 14.30/19.30; Sabato: 9.00/12.30 - 14.30/18.00.
Affiliato
Studio Santo Stefano Ticino D.I.
P.zza Sandro Pertini, 17 20010 Santo Stefano Ticino (MI)

2025 Tecnocasa Franchising S.p.A. - P. IVA 08365160152 - Via Monte Bianco 60/A 20089 Rozzano (MI). Ogni agenzia ha un proprio titolare ed è autonoma. Privacy policy | Policy utilizzo | Cookie policy